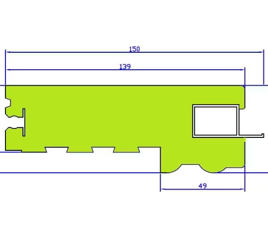
| 1 Uds | PERFIL <> 47 X 150 SIN PERSIANA | 840 mm. |
| 0 Uds | TORNILLO 4,2*25 ZINCADO | 0 mm. |
| 8 Uds | TORNILLO 4,2*45 ZINCADO | 0 mm. |
| 0 Uds | TORNILLO 4,2*25 ZINCADO | 0 mm. |
| 0 Uds | GARRA DE OBRA | 0 mm. |
| 6 Uds | ESCUADRA DE ENSAMBLAR EPS | 0 mm. |
| 0 Uds | TORNILLO 4,2*25 ZINCADO | 0 mm. |
| 0 Uds | TORNILLO 4,2*25 ZINCADO | 0 mm. |
| 1 Uds | PERFIL INFERIOR CONEXIÓN ALFÉIZAR DE 20 | 840 mm. |
| 0 Uds | TORNILLO 4,2*25 ZINCADO | 0 mm. |
| 24 Uds | TORNILLO 3,5*9,5 ZINCADO | 0 mm. |
| 2 Uds | PERFIL <> 47 X 150 SIN PERSIANA | 1220 mm. |
| 4 Uds | ESCUADRA DE ENSAMBLAR ESQUINAS | 0 mm. |
| 0 Uds | GARRA DE OBRA | 0 mm. |
| 0 Uds | TORNILLO 4,2*25 ZINCADO | 0 mm. |
| 0 Uds | GARRA DE OBRA | 0 mm. |